Naccache Building
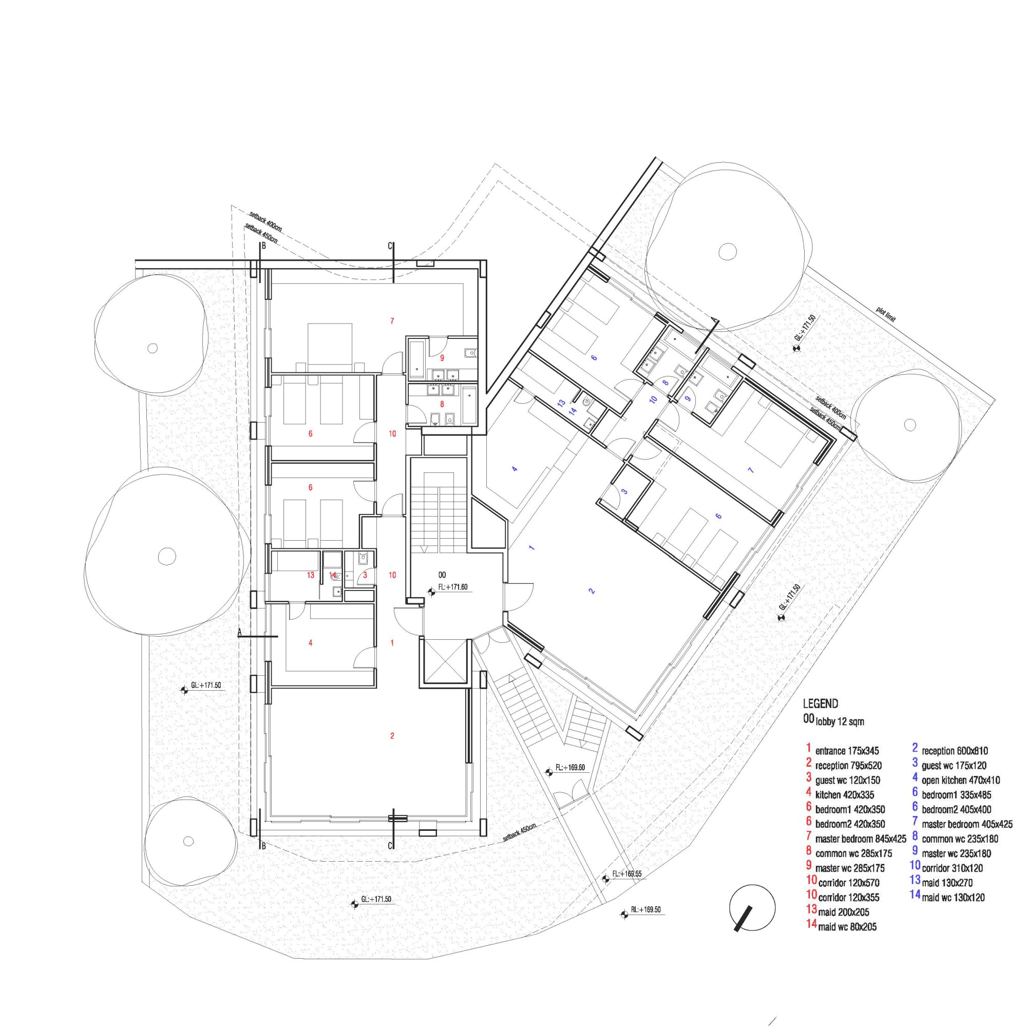
A project in collaboration with JWH Architects in Beirut. What is special about this project is its structural facade that gives room to a fluid and uninterrupted interiors.





A project in collaboration with JWH Architects in Beirut. What is special about this project is its structural facade that gives room to a fluid and uninterrupted interiors.





🦕 Get in touch before we become extinct 🦕
marianeghrayche@gmail.com