not a portfolio,
These are moments of my life, things that I see and things that I do. It’s a journal, it’s a journey shaped by interactions and collaborations with beautiful people, nourished by learnings and unlearning that make me who I am.



my face as per the golden ratio of beauty
The widespread belief that the Golden Ratio is the natural and universal blueprint for beauty is a pseudo-scientific hocus-pocus. There are lots of ratios and proportions in the human body, but they are not all the golden ratio, perhaps not even close to that. If you don’t believe me, measure it yourself.





let there be light









collaboration with Fabraca Studio


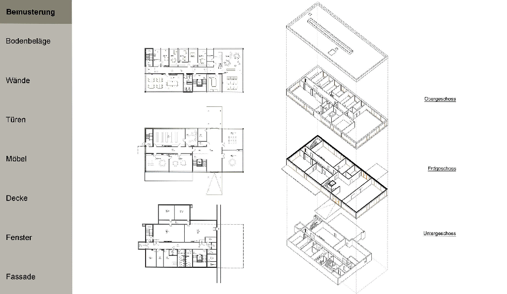
Renovation of my hometown Theater -Bcharre, Lebanon
take a break
from the constant longing for something, someone or somewhere else. Give your here and now a chance, plant a garden and watch it grow 🌿






Camera Obscura Experiment– at the Bauhaus Dessau
The ‘Design as Projection’ module is part of the Coop Design Research program conducted by Prof. Dr. Joachim Krausse and myself





Man and void in Architecture
Final year project- a pilgrimage path between nature and architecture



Clothing and Jewelry Display for the Beirut Design Collective– Exhibition2016


Chicken as Civic employees– coming soon








